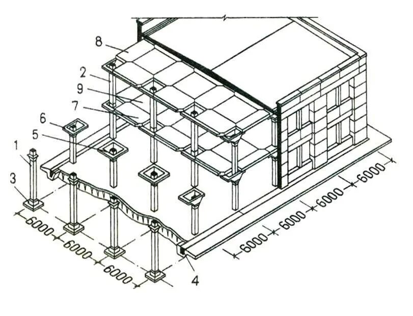
Несущие элементы здания r90. конструктивные элементы здания. важнейшие конструктивные элементы здания. основные архитектурно-конструктивные элементы здания.Конструктивные элементы здания подземной части. конструктивные элементы и схемы зданий. несущие конструктивные элементы здания. конструкции определяющие конструктивную схему здания.Выбор конструкции зданияЭлементы здания снизу сапожок. рис объемно планировочные конструктивные элементы здания. конструкционные элементы здания. конструктивные схемы многоэтажных зданий.Несущие конструкции здания это. конструктивные элементы зданий и сооружений. основные элементы здания. конструктивные части здания.Конструктивные схемы каркасных крупнопанельных зданий. сборно-монолитный железобетонный каркас пик. жб каркас многоэтажное промышленное здание шерешевский. каркасно ригельная система здания.Конструктивные элементы здания. конструктивные элементы жилого дома. основные технические требования к конструктивным элементам зданий. конструктив сталинских домов.Безбалочный каркас многоэтажного промышленного здания. каркасное жб промышленное здание. основные конструктивные элементы многоэтажного каркасного здания. многоэтажные производственные здания конструктивные схемы.Конструкционные элементы здания. строительные конструкции здания. конструктивные части здания. конструктивные схемы многоэтажных зданий.Выбор конструкции зданияВыбор конструкции зданияБезбалочный каркас многоэтажного промышленного здания. безбалочные монолитные перекрытия. безбалочные перекрытия многоэтажных промышленных зданий.. сборный жб каркас промышленного здания.Выбор конструкции зданияЖб каркас многоэтажное промышленное здание шерешевский. ригельный жб каркас. безбалочный каркас многоэтажного промышленного здания. монолитный железобетонный связевой каркас.Металлоконструкции. строительные металлоконструкции. строительные металлические конструкции. металлические конструкции в строительстве.Жб каркас промышленное здание шаг 123м. схема опалубки перекрытия монолит. жб каркас промышленное здание шаг 12м. каркасная схема здания из монолитного железобетона.Основные конструктивные части здания. конструктивные элементы и схемы зданий. конструкции определяющие конструктивную схему здания. назовите основные конструктивные элементы здания.Конструктивные особенности коммерцбанка. выбор конструкции. техносфера картинки для презентации.Конструктивные схемы одноэтажных каркасных зданий.. схема одноэтажного здания со стальным каркасом. конструктивные схемы одноэтажных промышленных зданий. конструктивные схемы одноэтажных производственных зданий.Инженерные конструкции. чертежи зданий и сооружений.Быстровозводимые здания лмк. каркасные здания лмк. быстровозводимые здания из лмк. мкл быстровозводимые конструкции.Металлические конструкции. металлические здания. металлоконструкции здания. металлические конструкции зданий.Сигма 250 металлокаркас. каркасные здания из металлоконструкций. металлический каркас здания. металлические каркасные конструкции.Конструктивные схемы каркасных зданий. строительный ригель в конструкциях. конструктивная схема с продольным расположением ригелей. несущие элементы здания.Основные элементы здания. конструктивные части здания. основные архитектурно-конструктивные элементы здания. строительные элементы здания.Таблица: конструктивные элементы зданий. основные конструктивные элементы зданий. конструктивные части здания. основные архитектурно-конструктивные элементы здания.Башня скай билдинг. металлоконструкции здания. каркас здания. металлические здания.Выбор конструкции зданияВыбор конструкции зданияВыбор конструкции зданияКонструктивная схема здания виды. конструктивные схемы каркасных зданий. классификация зданий по конструктивной схеме. конструктивная схема с продольным расположением ригелей.Классификация зданий по конструкции стен. конструктивные решения зданий. элементы конструкции стены. методы возведения зданий и сооружений.Каркасная конструкция здания. несущий остов здания. каркасный остов здания. несущий остов каркасных зданий.Выбор конструкции зданияЖб каркас промышленное здание шаг 12м. стропильные и подстропильные фермы. жб каркас одноэтажного промздания. металлические подстропильные конструкции для шага 18м.Здания из сборных железобетонных конструкций. многоэтажное железобетонное здание. современные многоэтажные здания. монолитное многоэтажное здание.Каркас сборно монолитный удс. сборно-монолитный железобетонный каркас пик. монолитный жб каркас здания. монолитный ригельный каркас.Монолитный каркас многоэтажных промышленных зданий схема. основные конструктивные схемы многоэтажных каркасных зданий. каркасный конструктивный тип многоэтажного промышленного здания. основные конструктивные элементы каркаса здания.Конструктивная система с продольными несущими стенами. продольно стеновая конструктивная схема здания. конструктивные схемы каркасных крупнопанельных зданий. конструктивная схема с продольным расположением ригелей.Конструктивные схемы одноэтажных производственных зданий. конструктивные элементы одноэтажного производственного здания. узлы железобетонного каркаса одноэтажных промышленных зданий. калькуляция монтажа конструкций одноэтажных промышленных зданий.