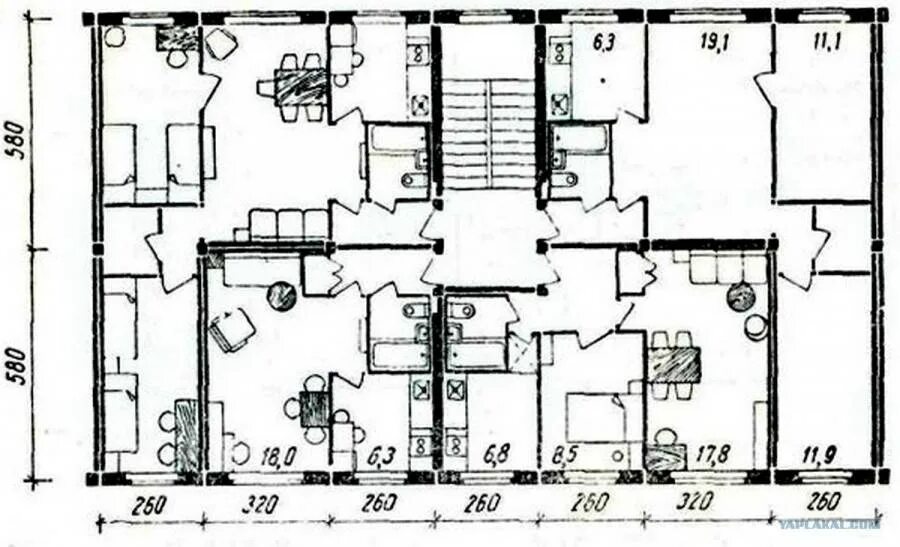
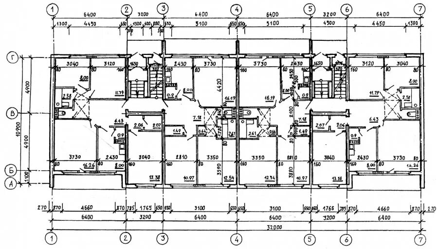
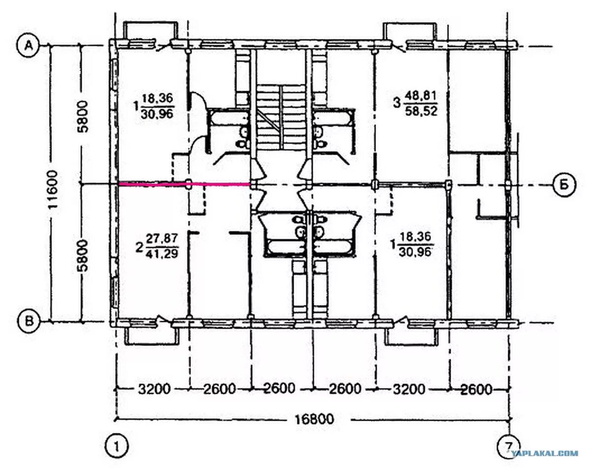
Тип постройкиТип постройкиТип постройкиВиды зданий и сооружений. типы жилых домов. классификация зданий и сооружений по этажности. здания по этажности.Тип постройкиТипы планировок крестьянской усадьбы. план русской избы 19 века. крестьянский двор 17 века усадьба. план крестьянская усадьба 19 века.Дом серии 1-447 вентиляция. серия тип постройки здания 1-447. типы построек. дом серии 1-447 чертеж.Тип постройкиОсновные типы крестьянских построек. типы крестьянских изб. основные типы построек русской избы. основные типы сооружений.Тип постройкиТип постройкиТип постройкиТип постройкиТиповой проект 114-85. 114-85-1/1 планировка. тип постройки типовой. 114-85 планировка.Схема панельного дома 9 этажей 1978 года. типовой проект ii-49. планировка панельных 5ти этажных зданий. планировка девятиэтажного панельного дома.Тип постройкиТипы многоэтажных жилых домов. типы домов монолитный. типы многоэтажных домов монолитный. преимущество строительства многоэтажных зданий.Секционный жилой дом широтной ориентации. типовые секции домов. тип постройки здания. широтные секции жилых домов.Тип постройкиТип постройкиТип постройкиТип постройкиТип постройкиТип постройки ii-57. серия тип постройки здания. серия, тип постройки здания: ii-57. серия и тип постройки здания индивидуальный.Тип дома кирпично-монолит. блочные кирпичный монолит. газобетонные блоки монолит. монолит-кирпич технология строительства.Тип постройкиТип постройкиПланировка 9 этажного панельного дома 80 годов. типовой проект панельного дома 9 этажей ссср. планировка панельных домов 9 этажей 1978. планировка девятиэтажных панельных домов 80 годов.Тип постройкиТип постройкиТип постройкиТип постройкиТип постройкиIi-01 сталинка планировка. планировка сталинских домов 1958 года. «сталинки», сталинские дома планировка. сталинка тип i 410 планировка.Тип постройкиЦековский дом планировка. планировка сталинских домов 1958 года. сталинка тип i 410 планировка. номенклатурная сталинка планировка.Тип постройкиПланировка панельной девятиэтажки 80 х. типовые панельные пятиэтажки ссср. панельные 9ти этажки 1979 года ii-49п. панельный дом 1983 года постройки 9 этажей.Тип постройкиТип постройкиТип постройкиПланировка 3-х этажных сталинок. проекты сталинских домов чертежи ссср. типовой проект сталинских двухэтажек. двухэтажный барак планировка.Тип постройкиТип постройкиТип постройкиПанельная хрущевка планировка. хрущевка планировка поэтажный план. хрущевка 1969 года постройки планировка. планировка хрущевки 1964 года постройки.Тип постройкиТип постройкиТипы многоэтажных домов. формы многоэтажных домов. типы постройки жилых домов. типы домов многоэтажных домов.Тип постройкиТип постройкиОбщежитие секционного типа планировка. планировка общежития блочного типа 9 этажей. планировка общежития секционного типа коридорного. схема общежития блочного типа.Типы домов блочный панельный монолитный. тип постройки панельный это. панельно-блочный дом. здания панельного типа.Тип постройкиПанельная 9ти этажка в москве. панельный дом 1978 года постройки. типовые панельные пятиэтажки ссср. брежневки панельные 9этажки.Тип постройкиТип постройкиТип постройкиТип постройкиТип постройкиТип постройкиКонструктивная схема здания виды. смешанная конструктивная схема здания. конструктивные схемы бескаркасных зданий. типы конструктивных систем зданий.Тип постройкиТипы домов. деревянный и кирпичный дом для детей. типы постройки домов. виды домов для детей.Тип постройкиТип постройкиТип постройкиПланировка хрущевки поэтажный план. кирпичная хрущевка поэтажный план. дом серии ii-14 планировка. план типового этажа хрущевка.Размер многоэтажного жилого дома. 1.200. проект 10 этажного жилого дома чертеж. план многоэтажного жилого дома чертеж. типовой панельный 10 этажный дом габариты.Тип постройкиТип постройкиТип постройкиТип постройкиИзба шестистенок чертеж. изба шестистенка план. чертежи дом пятистенок. основные типы планировки изб.Тип постройкиТип постройкиТиповой проект жилой дом колхозника. план восьмиквартирного дома. планировка двухэтажного восьмиквартирного дома. проект восьмиквартирного двухэтажного жилого дома.Тип постройкиПланировка общежития коридорного типа. планировка секционного типа. схема общежития коридорного типа. схема общежития секционного типа.Схема 9 этажного кирпичного дома. план типового этажа 9 этажного дома 2-3-3-3. план 10 этажного панельного дома тп 91 014 97. планировка многоквартирного дома.Тип постройкиХрущевка планировка поэтажный план. хрущевка 464 серии планировка. сталинка тип i 410 планировка. 1-464 планировка.