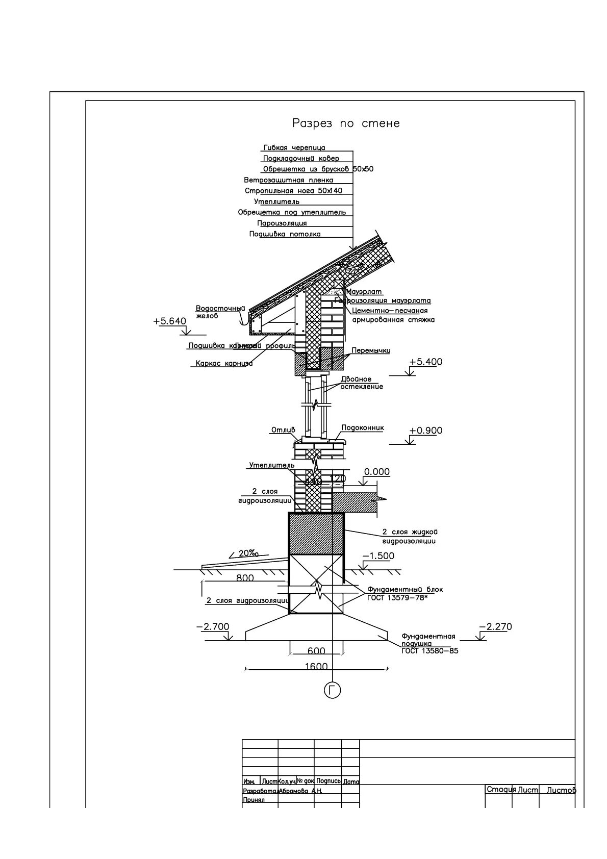
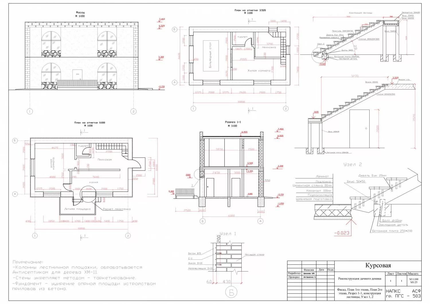
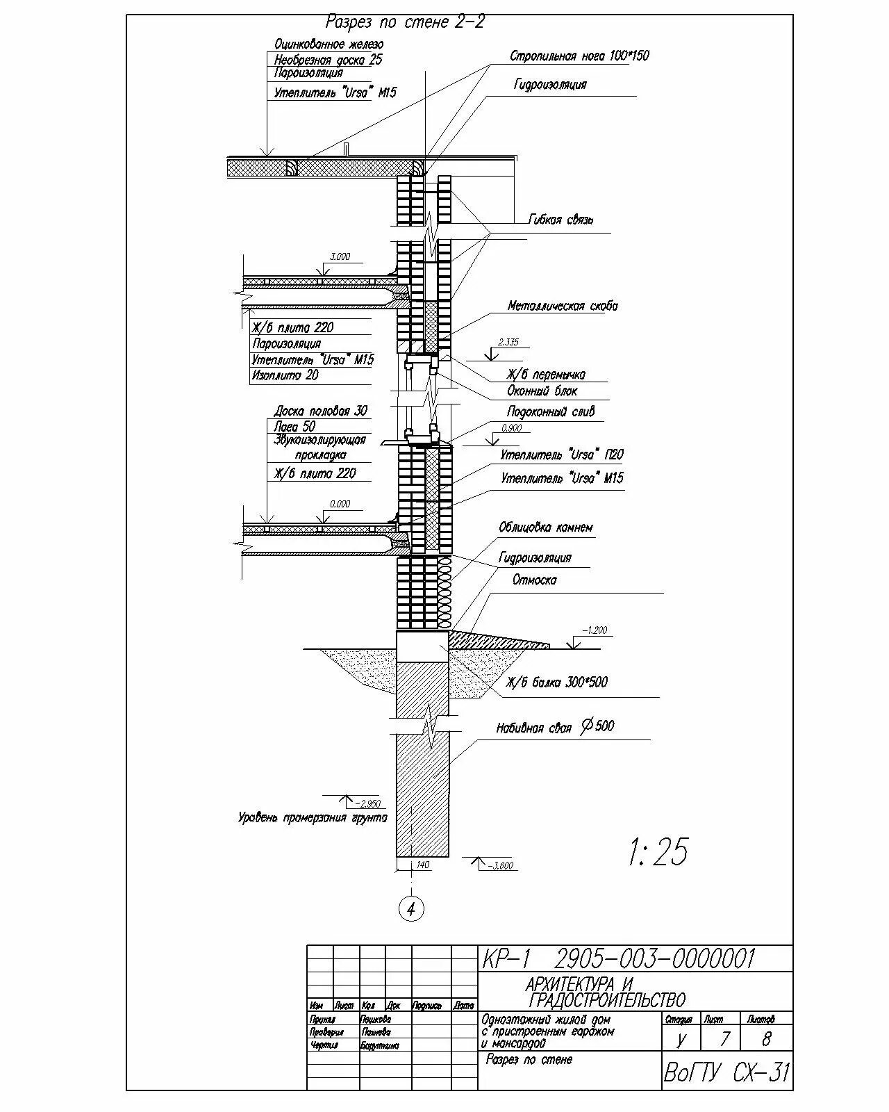
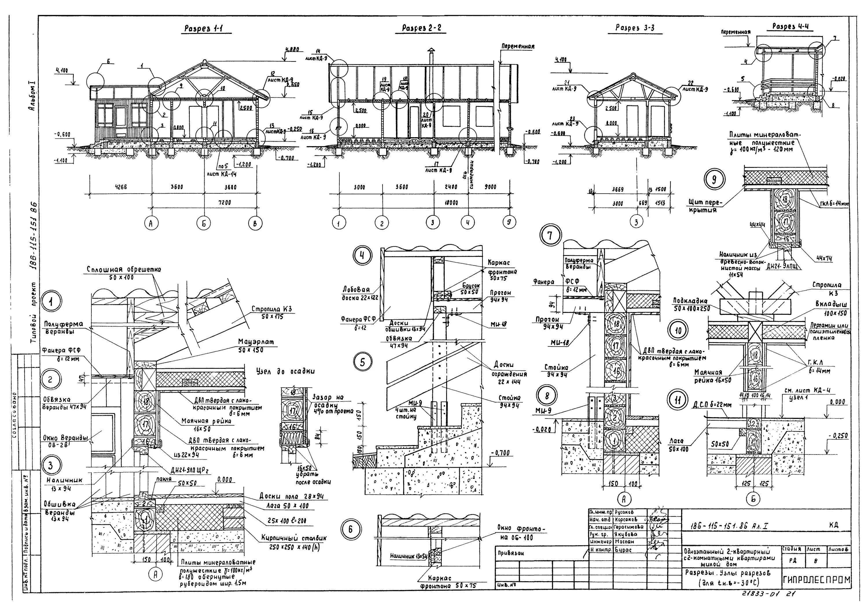
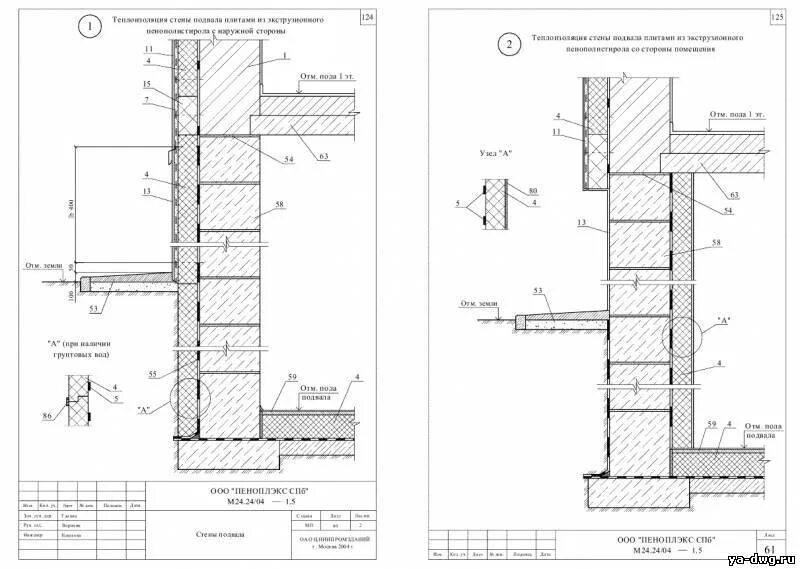
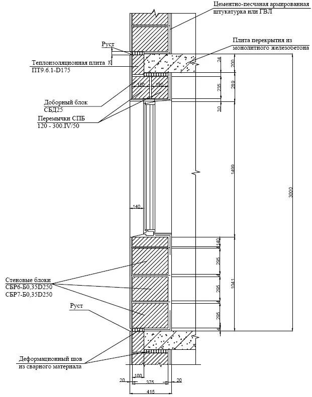
Разрез стены кирпичного дома чертеж. разрез по стене кирпичного дома чертеж. разрез по наружной кирпичной стене. кирпичная стена в разрезе на чертеже.Кирпичная стена в разрезе на чертеже. разрез по наружной кирпичной стене. разрез стены кирпичного дома чертеж. разрез по кирпичной стене с утеплителем.Разрез стены кирпичного дома чертеж. разрез по стене кирпичного дома чертеж. разрез по несущей стене кирпичного дома. разрез по наружной стене dwg.Кирпичная стена в разрезе на чертеже. сечение по стене чертеж. сечение по кирпичной стене. разрез стены чертеж.Узел крепления витража к плите перекрытия. оконный узел монолитного здания. узел утепления жб плиты. узлы утепление балкона чертежи.Разрез окна в кирпичной стене чертеж. кирпичная стена в разрезе на чертеже. разрез по стене кирпичного дома чертеж. разрез стены кирпичного дома чертеж.Разрез стены кирпичного дома чертеж. разрез бревенчатый дом чертеж. сечение по стене чертеж. разрез по наружной кирпичной стене.Разрез стены чертеж. конструктивный разрез наружной стены. разрез по стене кирпичного дома с балочным перекрытием. разрез по стене.Разрез стен чертежУзел междуэтажного перекрытия и стен здания. разрез междуэтажного перекрытия. узел перекрытия с кирпичной стеной чертеж. сечение по кирпичной стене.Узел оконного блока в кирпичной стене. оконный узел в кирпичной стене разрез. узел оконного проема в кирпичной стене. узел примыкания оконного блока.Узел устройства перемычки в кирпичной стене. узел окна в кирпичной стене чертеж. узел перемычки для кирпичных стен 510 мм. узел перемычки окна.Конструктивный разрез по наружной стене. конструктивный разрез по стене. конструктивный разрез стены. разрез по стене чертеж.Разрез монолитного многоэтажного здания. разрез по стене монолитного дома. разрез по стене панельного многоэтажного дома. чертежи монолита многоэтажного дома.Конструктивные элементы здания с кирпичными несущими стенами. каркасное перекрытие разрез. конструктивная схема малоэтажного кирпичного здания. поперечный разрез 2х этажного здания.Узлы перегородок каркасного дома чертежи. разрез по стене каркасного здания. узел стены каркасного дома чертеж. узлы деревянного каркаса чертежи.Разрез стены. разрез по стене. разрез стены на плане. разрез по стене кирпичного дома.Узел перемычка оконного проема. чертеж узлов оконных проемов. узел противопожарной отсечки. узел оконного проема в монолитной стене.Размер четверти в кирпичной кладке. сечение оконного проема чертеж. четверть в оконном проеме кирпичной кладки. четверти в кирпичной кладке на чертеже.Узел утепления цоколя с облицовкой. rockwool узлы цоколя. узел утепления стен подвала пеноплексом. узел утеплитель цоколь пеноплекс.Каркасная стена конструкция чертеж. разрез каркасной стены чертеж. узлы каркасного дома чертежи. узлы деревянных щитовых перегородок.Узел гидроизоляции фундаментной плиты. гидроизоляция фундамента чертеж. фундамент монолитная плита узел чертеж. разрез ленточного фундамента чертеж.Сечение по стене чертеж. сечение стены на чертеже. разрез стены чертеж. разрез по стене dwg.Узел перекрытия монолитного чертеж. узел наружной стены толщиной 600 мм. конструкции и узлы стен. монолитные перегородки толщина.Узел перекрытия монолитного чертеж. узел перекрытия монолитного дома. узел стены монолитной стены. узел перекрытия жб плиты.Крепление парапета к плите перекрытия. узел примыкания ребристой плиты к стеновой панели. узел парапета трехслойной жб панели. примыкание перегородки к колонне.Строительные узлы. узлы на чертежах по архитектуре. витраж в кирпичной стене узел. разрез стены чертеж.Фасадное остекление разрез чертеж. разрез витражного остекления чертеж. разрез по стене чертеж. чертеж стены сбоку вертикальный.Карнизный узел кровли чертеж. карнизный узел скатной кровли. карнизный узел схема.Разрез стен чертежУзлы сэндвич панелей. узлы лстк конструкции. стеновые сэндвич панели разрез схема. термопрофиль для сэндвич панелей.Узлы дверных проемов и перемычек. оконные перемычки чертеж. узел перемычки окна.Разрез здания кирпичного чертеж. разрез по стене конструктивный чертеж. деревянное перекрытие чертеж разрез. разрез бетонного покрытия на чертеже.Сечение по стене чертеж. узел в сечении. сечение стены стены. дом на плите сечение по стене чертеж.Крепление вентфасада чертеж. вентфасад узел примыкания к отмостке. пирог стены вентфасада. узел вентфасада чертеж.Вентилируемый фасад чертеж разрез. толщина конструкции вентфасада из керамогранита. вентфасад плитка узел. вентилируемый фасад пирог чертеж.Узел примыкания газобетона к перекрытию. узел кровли и газобетона. узлы крепления наружных стен из газобетонных блоков d600. узел примыкания монолитного перекрытия к стене.Разрез по стене кирпичного дома чертеж. разрез здания кирпичного чертеж. разрез стены чертеж. разрез по стене чертеж.Узел на разрезе. узлы в разрезе дома. узлы на разрезе здания. чертеж узла разреза дома.Разрез стен чертежОбозначение узла на чертеже сбоку. строительные узлы на чертеже. как показать узел на чертеже. обозначение узлов на строительных чертежах.Разрез здания с монолитной плитой фундамента. разрез двухэтажного здания чертеж. разрез здания с монолитным перекрытием. разрез монолитного здания чертеж.Узел самонесущей наружней стены. трехслойная жб панель наружней стены чертеж. жб панель 400мм наружней стены чертеж. панели стеновые однослойные железобетонные чертёж.Кирпичная кладка стен с утеплителем схема. штукатурный фасад с утеплением схема. конструкции стен из газобетона и кирпича с утеплителем. облицовка газобетона кирпичом чертежи.Конструктивный разрез здания чертеж. деревянное перекрытие чертеж разрез. конструктивные схемы кирпичных зданий. разрез чертеж кровли с деревянными перекрытиями.Разрез стены с сайдингом. разрез монолитной стены. разрез стены демонстрация в шоуруме.Узел кирпичной перегородки 120 мм. трехслойные наружные кирпичные стены 510 чертеж. поротерм 380 чертеж. блок поротерм 44 чертеж.Перегородка гкл с112. горизонтальная перемычка в перегородке гкл. гкл в разрезе.Разрез здания в автокаде. план этажа автокад. разрез по стене автокад.Узлы перегородок каркасного дома чертежи. чертежи деревянных каркасных перегородок. узел стены каркасного дома чертеж. чертежи деревянных перегородок.Разрез стены кирпичного дома чертеж. сечение по стене чертеж. разрез по наружной стене кирпичного дома. разрез несущей стены чертеж.Разрез стен чертежУзел примыкания металлической двери к стене. узел примыкания дверного блока к стене. узел примыкания дверного блока к кирпичной стене. узлы примыкания панели к оконному блоку.Перегородка из гкл кнауф чертеж. конструкция гипсокартонных перегородок схема. перегородка гкл 100 чертеж. чертёж разрез перегородка из гкл.Чертеж стены. навесная стена чертеж. перегородка чертеж в разрезе. обрыв стены на чертеже.Ростверк свайного фундамента чертеж. свайно-ростверковый фундамент чертеж. узел свайного фундамента с ростверком. свайно ростверковый фундамент схема устройства.Разрез стен чертежКирпичная стена в разрезе на чертеже. сечение по стене чертеж. разрез по стене монолитного здания. конструктивный разрез по наружной стене.Разрез по стене конструктивный чертеж. узел разрез по стене.Узел примыкания жб плиты к кирпичной стене. вентилируемый фасад чертеж разрез. узел крепление вентфасада к перекрытию. узел противопожарной отсечки.Узел стены каркасного дома чертеж. разрез каркасного дома чертеж. узлы деревянного каркаса чертежи. разрез каркасной стены чертеж.Разрез 1-1 на чертеже. оформление фасада чертеж. сечение по стене чертеж. чертеж фасада по госту.Проектный оконный узел в кирпичной стене чертеж. сечение по стене чертеж. кирпичная стена в разрезе на чертеже. конструктивный разрез по наружней стене узел.Перемычка в несущей стене чертёж. чертеж перемычек оконных на разрезе. перемычки архитектура чертеж. эркер на фасаде чертеж.Разрез стены 640 мм. разрез кирпичной стены 510 мм. конструкция стены 640 мм. трехслойные наружные кирпичные стены 510 чертеж.Разрез стен чертежРазрез по однослойной стене. разрез стены чертеж. разрез стены из бруса. разрез по наружной стене.Узел стены из кирпича. стена кирпичная узел чертеж. кирпичная стена в разрезе. разрез по наружной стене.Опалубочный план стен чертеж. армирование дверных проемов арматурой. армирование стен чертеж. обозначение армирования на чертежах.Трехслойные наружные кирпичные стены 510 чертеж. узел трехслойной кирпичной стены. гибкие связи для кирпичной кладки чертеж.Сечение по кирпичной стене. разрез окна в кирпичной стене чертеж. разрез стены чертеж.Разрез стены чертеж. разрез фундамента чертеж dwg. узлы здания чертежи. разрез по стене двг.Конструктивный узел монолитного перекрытия. строительные узлы на чертеже. узел опирания плиты перекрытия. конструкционные узлы зданий.Сечение наружной стены. сечение по стене. толщина монолитной стены. сечение по кирпичной стене.Узел деревянного здания чертеж. разрез бревенчатый дом чертеж. сруб в разрезе чертеж. разрез 1-1 на чертеже.Кирпичная стена в разрезе на чертеже. сечение по стене чертеж. разрез стены кирпичного дома чертеж. разрез по стене двухэтажного дома из кирпича.Разрез стены толщиной 510мм. трехслойные наружные кирпичные стены 510 чертеж. перемычки в наружных стенах 510 мм. кирпичная кладка стен с утеплителем схема.Разрез стен чертежРазрез по госту чертеж. чертеж фасадов с сечениями. гост по чертежам строительным. разрез 2-2 на чертеже.Чертеж уровня перепада высот. интерьер в разрезе. цветной разрез интерьера чертеж. конвекторы в полу чертеж разрез пола.Чертеж стен дома. разрез каркасного дома чертеж. разрез стены каркасного дома чертеж. чертеж каркасной стены.