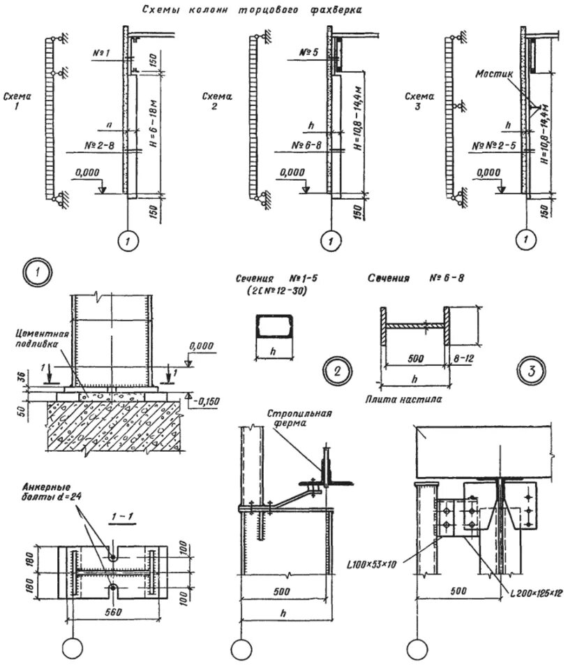
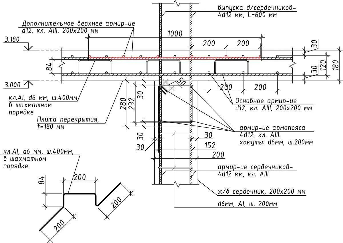
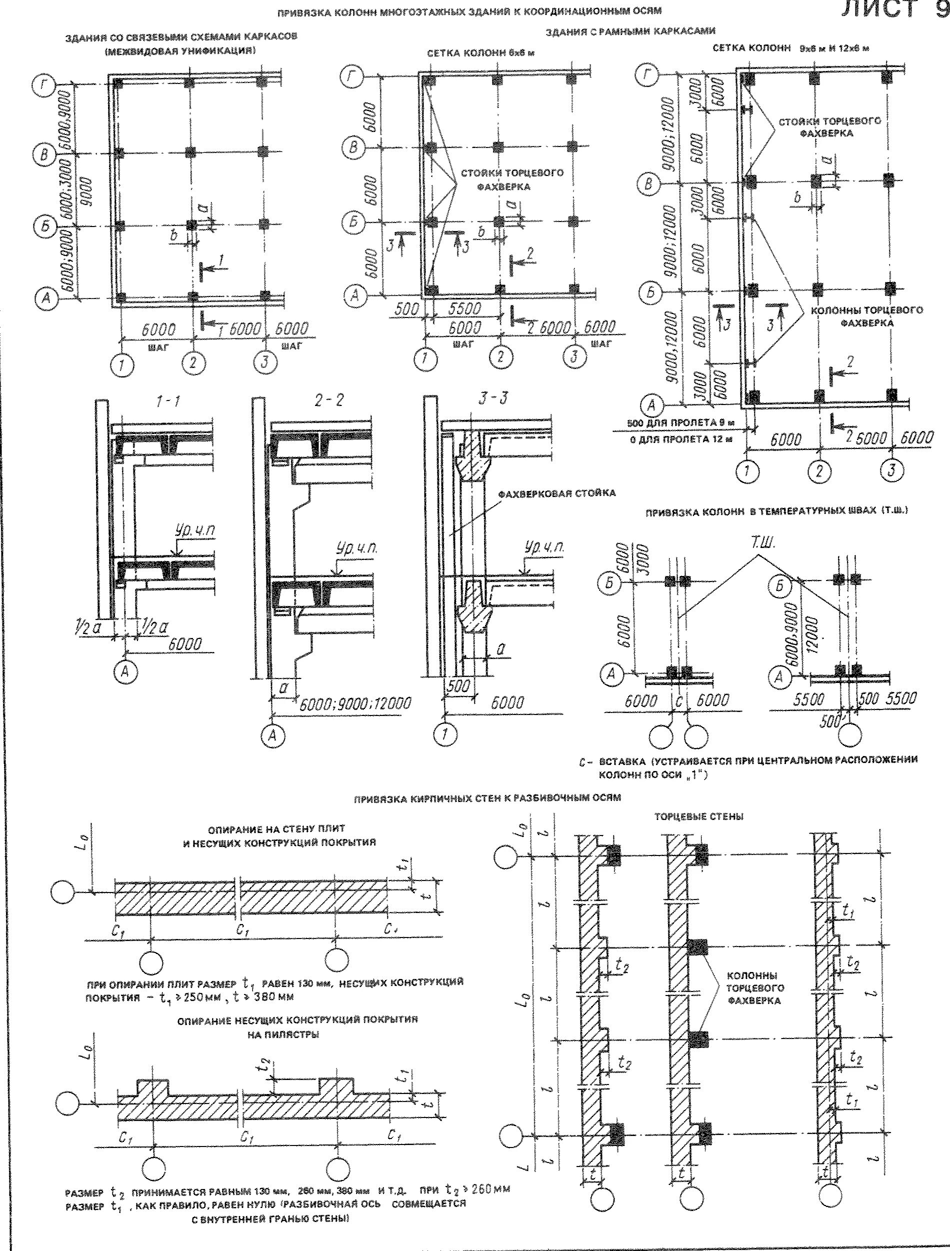
Расстояние от колонны до стеныПривязка торцевой колонны в промышленном здании. привязка стен толщиной 400 мм. привязка для колонн средних рядов каркасного здания. наружная стена толщиной 380 привязка оси.Нормы расстояний между станками и от станков до стен и колонн зданий. расстояние от стены до станка. расстояние станка от стены. расстояние от станка до станка.Расстояние от колонны до стеныПривязка колонн в промздании. привязка крайних металлических колонн. привязка колонн жб 500. привязка торцевой металлической колонны.Нормы расстояний между станками и от станков до стен и колонн зданий. расстояние станка от стены. расстояние между станками. расстояние от стены до станка на планировке.Расстояние от колонны до стеныРасстояние от колонны до стеныРасстояние от колонны до стеныПриколонные стойки торцевого фахверка. привязка металлических колонн к оси 500. фахверковые колонны на чертеже. привязка фахверковых колонн.Расстояние от колонны до стеныРасстояние от колонны до стеныРасстояние от колонны до стеныПлан одноэтажного промздания с разбивочными осями. разбивочные оси здания продольные. схема разбивки осей здания. фахверковые колонны схема.Жб двухветвевые колонны высотой 10,6м шириной 2,5м. металлокаркас ригель стойка узлы крепления. стальная колонна 40к8 чертеж. чертеж колонны одноэтажного каркасного промышленного здания.Построение в колонну схема. пропорции колонн. построения здания с колоннами. расстояние между колоннами.Расстояние от колонны до стеныРасстояние от колонны до стеныРасстояние от колонны до стеныРасстояние от колонны до стеныРасстояние от колонны до стеныРасстояние от колонны до стеныКолонна фахверковая для кирпичных перегородок. привязки стальных колонн промзданий. узел крепления фахверковой колонны. нулевая привязка металлической колонны это.Расстояние от колонны до стеныФахверковые колонны на чертеже. исполнительная схема металлоконструкций. жб каркас промышленное здание шаг 123м. фахверковые колонны для сэндвич панелей.Расстояние от колонны до стеныРасстояние от колонны до стеныРасстояние от колонны до стеныФахверковые колонны на чертеже. схема расстановки фахверковых колонн. сетка с2 колонна чертеж. фахверковые колонны на плане здания.Расстояние от колонны до стеныРасстояние от колонны до стеныРасстояние от колонны до стеныРасстояние от колонны до стеныРасстояние от колонны до стеныРасстояние от колонны до стеныРасстояние от колонны до стеныРасстояние от колонны до стеныРасстояние от колонны до стеныРасстояние от колонны до стеныСхема торцевого фахверка металлические. фундамент под колонны фахверка 400 400. стойки фахверка жб. стойки торцевого фахверка в промышленном здании.