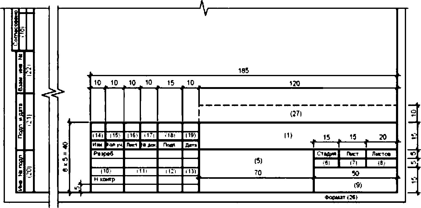
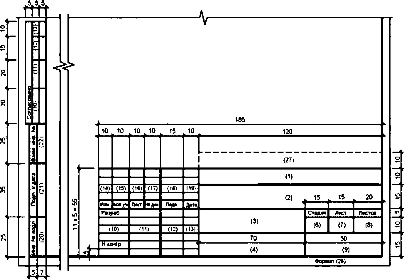
Основная надпись ескд пример. основная надпись и дополнительные графы для чертежей и схем форма 1. основная и дополнительная надпись чертежа. основные надписи на конструкторских документах.Заполнение штампа чертежа а3. основная надпись чертежа а2. основная надпись чертежа а2 размеры. основная надпись чертежа а1.Чертежная рамка а3 по госту. чертеж а1 по гост. заполнение штампа чертежа а4. как заполнять табличку на чертежах.Правила заполнения чертежаЗаполнение основной надписи. заполннние осноаноц над. заполнение основной надписи чертежа. заполнить основную надпись.Основная надпись чертежа заполнение. заполнение основной надписи сборочного чертежа. пример заполнения основной надписи чертежа. как заполнять основную надпись на чертеже.Заполнение основной надписи чертежа. пример заполнения основной надписи чертежа. основная надпись чертежа. подпись штампа на чертеже.Заполнение штампа чертежа. строительный чертеж штамп основной надписи. заполнение штампа строительного чертежа. заполнение штампа по чертежам.Пример заполнения основной надписи чертежа. как заполнять основную надпись на чертеже. основная надпись чертежа заполнение. заполнение рамки чертежа.Основная надпись размерность. как оформлять чертежи по госту. основная надпись чертежа а2 размеры. размеры основной надписи на чертеже а4.Основная надпись чертежа. основная подпись на чертеже. основная надисьчертежа. таблица основной надписи.Заполнение основной надписи. пример заполнения основной надписи чертежа. пример заполнения основной надписи. порядок заполнения основной надписи чертежа.Заполнение штампа чертежа. пример заполнения штампа. штамп чертежный. штамп чертежный заполненный.Основная надпись чертежа. графы основной надписи чертежа. основная надпись машиностроительного чертежа. основная надпись для курсовой работы.Заполнение основной надписи чертежа. как заполняется основная надпись на чертежах. заполнение штампа чертежа. заполнение таблицы чертежа.Правила заполнения чертежаШтамп строительного чертежа гост. гост на штампы чертежей рабочей документации. основная надпись в чертежах по строительству. заполнение штампа рабочей документации гост.Заполнение основной надписи. заполнение основной надписи чертежа. заполннние осноаноц над. пример заполнения основной надписи чертежа.Правила заполнения чертежаПравила заполнения чертежаШтамп чертежа. заполнение основной надписи чертежа. пример штампа на чертеже. оформление штампа чертежа.Пример заполнения основной надписи чертежа. штамп основная надпись. основная надпись заполненная. заполнить основную надпись.Заполнение углового штампа на чертежах. как заполнять штамп на чертеже. заполнение штампа чертежа а4. заполнение штампа форма 3.Заполнение основной надписи. пример заполнения основной надписи чертежа. пример заполнения основной надписи. основная надпись дипломного проекта.Как оформляется основная надпись на чертеже. как заполнять таблицу в чертеже. основная надпись чертежа школьная. основная надпись чертежа а4 горизонтальная.Правила заполнения чертежаЗаполнение основной надписи чертежа. основная надпись чертежа заполнение. заполнить основную надпись. штамп основной надписи.Правила заполнения чертежаЗаполнение основной надписи чертежа. основная надпись чертежа. черчение основные надписи. пример заполнения основной надписи чертежа.Заполнение штампа чертежа. как заполнять штамп. заполнить штамп чертежа. пример заполнения штампа чертежа.Заполнение штампа чертежа. номер чертежа в штампе. заполнение штампа чертежа в автокаде. гост заполнение штампа чертежа.Правила заполнения чертежаОсновные надписи на чертежах. основная надпись чертежа. заполнение основной надписи чертежа. заполнение основной надписи спецификации.Основная надпись чертежа а4 горизонтальная. основная рамка чертежа а4 основная надпись. учебная основная надпись чертежа а4. основная надпись чертежа школьная.Заполнение штампа чертежа а4. размеры штампа сбоку на чертежах. штамп для машиностроительного чертежа гост. как заполнять штамп на чертеже.Штамп по гост р 21.101-2025. гост 21.101 основная надпись. размеры штампа строительного чертежа. гост 21.101-97 форма 3.Заполнение основной надписи сборочного чертежа. как заполнять чертеж по госту. основная надпись на строительных чертежах заполнение. заполнение таблицы черчение.Правила заполнения чертежаПравила заполнения чертежаГост 2.104-68 основные надписи. основная надпись гост 2.104-68. ескд штамп чертежа гост 2.104. черчение основная надпись гост 2.104-68.Высота шрифта в штампе. размер шрифта в основной надписи чертежа. заполнить основную надпись. шрифт основной надписи.Гост 2.104–2006 единая система конструкторской документации (ескд). основная надпись чертежа гост 2.104-2006. ескд основная надпись 2.104. единая система конструкторской документации основные надписи.Штамп курсового проекта. штамп чертежа для дипломного проекта. заполненный штамп. форма заполнения рамок.Правила заполнения чертежаКак заполнять таблицу в чертеже. основная надпись чертежа а3 гост. основная надпись чертежа а3 вертикальная. как оформлять чертежи по госту.Правила заполнения чертежаЗаполнение таблицы на чертеже а3. заполнение рамки чертежа по госту а3. заполнение штампа чертежа а4. штамп а4 гост для word.Заполнение штампа чертежа а3. основная надпись чертежа а3 заполнение. основная надпись форма 3 пример заполнения. основная надпись в штампе чертежа.Таблица основная надпись чертежа а4. рамка снизу на чертеже. размеры основной надписи на чертеже а3. основная рамка чертежа а4 основная надпись.Основные надписи на чертежах гост 2.104-68. основная надпись чертежа по госту. нормы оформления чертежей гост. основная надпись чертежа а3 гост.Гост 21.101 основная надпись. строительный чертеж штамп основной надписи. штамп чертежа 185 на 55. штамп чертежа спдс.Правила заполнения чертежаПравила заполнения чертежаОсновная надпись штамп для машиностроительного черчения. основная надпись чертежа а4. основная надпись машиностроительного чертежа. основная надпись чертежа обозначение.Правила заполнения чертежаГрафы основной надписи по гост 21.101. гост р 21.1101 форма 6. форма 5 штампа чертежа. штамп форма 6.Основная надпись чертежа 1к1. основная надпись чертежа инженерная графика а3. как выполняется основная надпись на чертежах. основная надпись размерность.Заполнение штампа чертежа а4. штамп чертежа гост а4. штамп сбоку на чертеже. размеры углового штампа на чертежах.Основная надпись чертежа а4 форма 2. основная надпись штамп для машиностроительного черчения.Стандарты оформления чертежа черчение. правила оформления рамки чертежа а4 по госту. правила оформления чертежей а3. основная надпись в чертеже по госту формат а4.Основная надпись гост 2.104-2006. ескд основная надпись 2.104. основная надпись чертежа по гост 2.104. основная надпись форма 1 гост 2.104-2006.Основная надпись чертежа а4 гост. основная надпись чертежа а4 горизонтальная. основная надпись чертежа а4 форма 2. таблица основная надпись чертежа а4.Правила заполнения чертежаЗаполнение основной надписи на чертежах гост. таблица ескд основная надпись. основная надпись чертежа а3 гост. сокращения по госту в чертежах.Основная надпись архитектурно-строительного чертежа. строительный чертеж штамп основной надписи. заполнение основной надписи чертежа спдс. заполнение основной надписи строительного чертежа.Правила заполнения чертежаПравила заполнения чертежаЗаполнение штампа чертежа. пример заполнения основной надписи чертежа. заполнение чертежной рамки. штамп основная надпись.Пример заполнения основной надписи строительного чертежа. госты по оформлению строительных чертежей в автокаде. заполнение штампа на чертеже по госту. оформление штампа чертежа гост.Правила заполнения чертежаПравила заполнения чертежаПравила заполнения чертежаПравила заполнения чертежаПравила заполнения чертежаШтамп по гост 21.1101-2013. гост 21.101 спецификация. основная надпись чертежа по гост 21.101 спдс. угловой штамп для чертежа а1 по госту.Основная надпись чертежа заполнение. как заполнять таблицу в чертеже. заполнение основной надписи чертежа. пример заполнения основной надписи чертежа.Основная надпись чертежа а3 гост. гост 2.104-68 основные надписи. основная надпись чертежа а4 гост. основная надпись чертежа гост 2.104-68.Правила заполнения чертежаПравила заполнения чертежаЕскд основная надпись чертежа. заполнение штампа основной надписи сборочного чертежа. основная надпись сборочного чертежа гост. таблица основная надпись чертежа а4.Как заполнять рамку чертежа а4. штамп для черчения а4 размеры по госту. заполнение рамки чертежа а4. размеры основной надписи на чертеже а4.Правила заполнения чертежаПравила заполнения чертежаПравила заполнения чертежаПравила заполнения чертежаИнженерная графика основная надпись заполнение. заполнение рамки чертежа по госту пример. как заполнять таблицу в чертеже. как заполнять штамп на чертеже.Штамп чертежа для дипломного проекта. штамп чертежа гост. штамп по госту на чертеже. штамп архитектурного проекта.Форма 3 штампа чертежа. основная надпись форма 3. основная надпись форма 3 гост р 21.1101-2013. основная надпись для строительных чертежей по госту.Правила заполнения чертежа