Удиви меня
Pathfinder софт
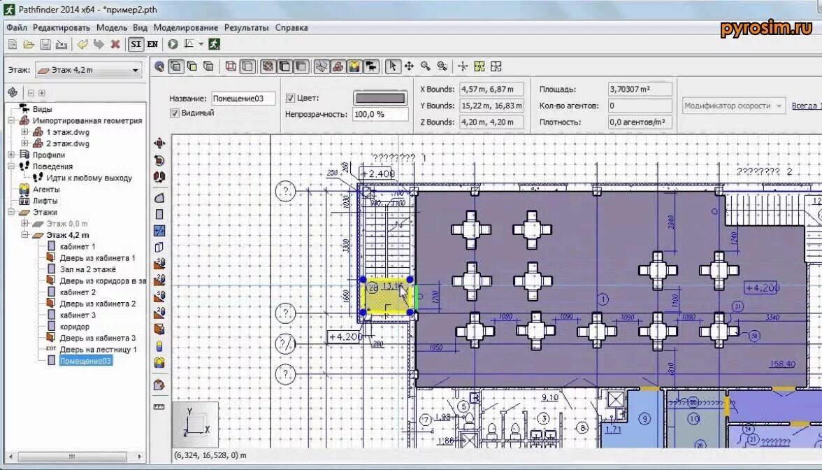
План движения людских потоков. pathfinder программа. здание программа pathfinder. pathfinder - расчет времени эвакуации людей.
Pyrosim программа. pathfinder программа. здание программа pathfinder. fds pyrosim.
Pathfinder программа. pathfinder mac os. pathfinder file manager. файловый менеджер с классическим двухоконным интерфейсом.
Pathfinder программа. the life coach workbook.
Pathfinder софт
Nissan pathfinder 2010 rear view. nissan pathfinder iii новый. ниссан патфайндер с кузовом. ниссан патфайндер r51 2.5 литра дизель вид сзади.
Nissan pathfinder 2025. инфинити 2025. новый инфинити. инфинити новая модель 2025.
Pathfinder программа. здание программа pathfinder. расчетная модель здания в программе pathfinder. firecat расчет.
Finder файловый менеджер. finder приложение. pathfinder file manager. finder где находится.
Nissan pathfinder 2010. nissan pathfinder nissan pathfinder. nissan pathfinder 1. патфайндер 11 года.
Pathfinder 2e fumble deck.
Pathfinder софт
Nissan pathfinder 2008. ниссан патфайндер 2008. nissan pathfinder 5. ниссан pathfinder 2008.
Finder файловый менеджер. pathfinder mac os. path finder mac os. pathfinder file manager.
Машина фэс nissan pathfinder. ниссан патфайндер фэс. ниссан панфиндер патфайндер. nissan pathfinder тест драйв 2008.
Pathfinder софт
Pathfinder софт
Pathfinder софт
Nissan pathfinder 2007. nissan pathfinder 2010. nissan pathfinder (2005–2012). nissan pathfinder r51 le.
Nissan pathfinder r51. ниссан патфайндер 2012. nissan pathfinder r51 вид сбоку. nissan pathfinder 2004-2014.
Nissan pathfinder. ниссан патфайндер 2007. nissan pathfinder 2009. nissan pathfinder 2012.
Pathfinder софт
Pathfinder таблицы. pathfinder требования. pathfinder таблица персонажа. pathfinder программа.
Pathfinder софт
Pathfinder charsheet. pathfinder настолка лист персонажа. pathfinder карточка игрока. лист для pathfinder для руководителя.
Pathfinder combat pad. pathfinder 2e поппер. pathfinder 2e эмблема. pathfinder поезд.
Pathfinder софт
Pathfinder софт
Pathfinder софт
Pathfinder rune giant. paizo pathfinder. rune giant днд. сохэй pathfinder.
Pathfinder adventures. pathfinder adventures персонажи. pathfinder adventures системные требования. pathfinder снаряжение.
Nissan pathfinder r51 рестайлинг салон. pathfinder 2012 салон. nissan pathfinder r51 салон. nissan pathfinder 2012 салон.
Pathfinder kingmaker inventory. pathfinder: kingmaker - imperial edition bundle герои. pathfinder уровни сложности. pathfinder kingmaker чит.
Pathfinder 2e стартовый набор. pathfinder 2 набор. pathfinder настольная игра box. pathfinder 1e стартовый набор.
Pathfinder 2 нри. орк pathfinder. pathfinder 2 орк. фечлин pathfinder.
Патфайндер кингмейкер моды. pathfinder kingmaker волк. pathfinder kingmaker 2. pathfinder kingmaker моды.
Миниатюрки pathfinder. pathfinder battles. pathfinder миниатюры. патфайндер нри миниатюры.
Pathfinder софт
Pathfinder игра 2009. pathfinder вселенная. pathfinder обложка. теренделев pathfinder.
Pathfinder 2e на русском. pathfinder 2e действия. pathfinder 2ed памятки игрокам. таблица навыков pathfinder 2e.