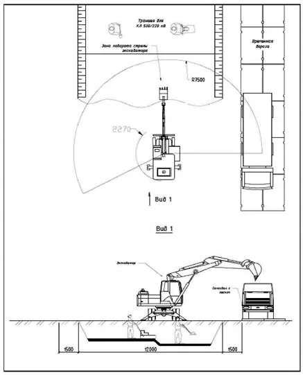
Радиус опасной зоны экскаватора. радиус поворота вилочного погрузчика. опасная зона работы экскаватора. опасная зона экскаватора при работе.Опасная зона экскаватора при работе. радиус опасной зоны экскаватора. граница опасной зоны экскаватора. обозначение опасной зоны экскаватора.Опасная зона работы экскаватора. граница опасной зоны экскаватора. опасные зоны машин и механизмов. радиус опасной зоны экскаватора.Опасная зона при работе экскаватораЗемляные работы. безопасность при производстве земляных работ. опасная зона экскаватора. радиус опасной зоны экскаватора.Радиус опасной зоны экскаватора. технологическая карта на устройство траншеи экскаватором. схема работы экскаватора при разработке траншеи. технологическая карта на разработку грунта в котловане.Опасная зона при работе экскаватораОпасная зона при работе экскаватораГраницы опасных зон при работе экскаваторов. граница опасной зоны работы экскаватора. опасная зона экскаватора при работе. расчет опасной зоны экскаватора.Опасная зона при работе экскаватораСхема подачи материалов к рабочему месту каменщика. схема места стоянки крана. граница опасной зоны экскаватора. граница опасной зоны работы крана.Радиус опасной зоны экскаватора. опасная зона работы экскаватора при земляных работах. опасная зона экскаватора при работе. граница опасной зоны экскаватора.Опасная зона при работе экскаватораОпасная зона при работе экскаватораОпасная зона при работе экскаватораТребования безопасности при работе с экскаватором. диафильм по технике безопасности. опасная зона экскаватора при работе. не находись в зоне действия экскаватора.Стреловое оборудование радиус опасной зоны. опасная зона крана кб 308. радиус опасной зоны крана. монтажная зона крана.Радиус опасной зоны экскаватора. опасная зона стрелового крана. радиус опасной зоны стрелового крана. радиус опасной зоны крана чертеж.Опасная зона при работе экскаватораОпасная зона при работе экскаватораОпасная зона при работе экскаватораОпасная зона при работе экскаватораПлакат "одноковшовый экскаватор. безопасность земляных работ. одноковшовый экскаватор безопасность земляных работ. тб при работе с экскаватором. техника безопасности при экскаватора работе одноковшового.Опасная зона при работе экскаватораОпасная зона при работе экскаватораОпасная зона при работе экскаватораРадиус опасной зоны экскаватора wk20. обозначение опасной зоны экскаватора. вытрамбовывание котлованов. опасная зона экскаватора при работе.Опасная зона при работе экскаватораРабочая зона экскаватора. схема рабочие зоны экскаватора. опасная зона работы экскаватора. радиус опасной зоны экскаватора.Опасная зона при работе экскаватораПпр разработка грунта. призма обрушения откоса котлована. схема работы экскаватора при разработке траншеи. схема установки крана вблизи котлована.Опасная зона при работе экскаватораОпасная зона при работе экскаватораТехника безопасности одноковшовых экскаваторов. требования безопасности для машиниста экскаватора. требования безопасности при работе с экскаватором. тб для экскаватора.Граница опасной зоны. схема границы опасной зоны автокрана. радиус опасной зоны. граница опасной зоны экскаватора.Эо 3322б чертеж. экскаватор с грейферным оборудованием схема. схема рабочие зоны экскаватора. экскаватор чертеж.Радиус рабочей зоны крана. опасная зона падения груза с крана. радиус опасной зоны экскаватора.Опасная зона работы экскаватора. безопасная зона экскаватора. радиус опасной зоны экскаватора. опасная зона экскаватора при работе.Опасная и монтажная зона крана. граница опасной зоны вблизи мест перемещения грузов краном. радиус опасной зоны крана. опасная зона при работе крана чертеж.Опасная зона при работе экскаватора