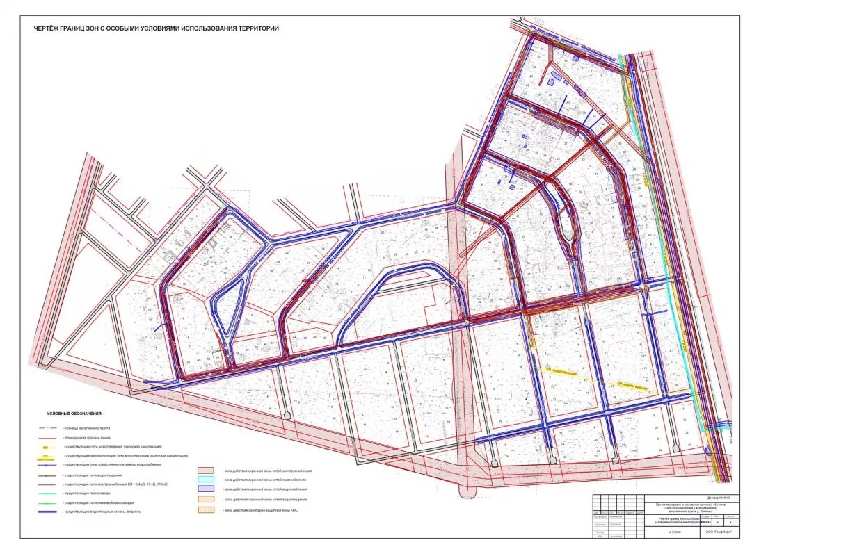
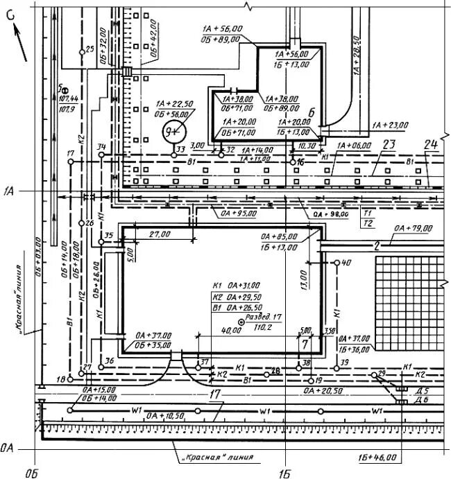
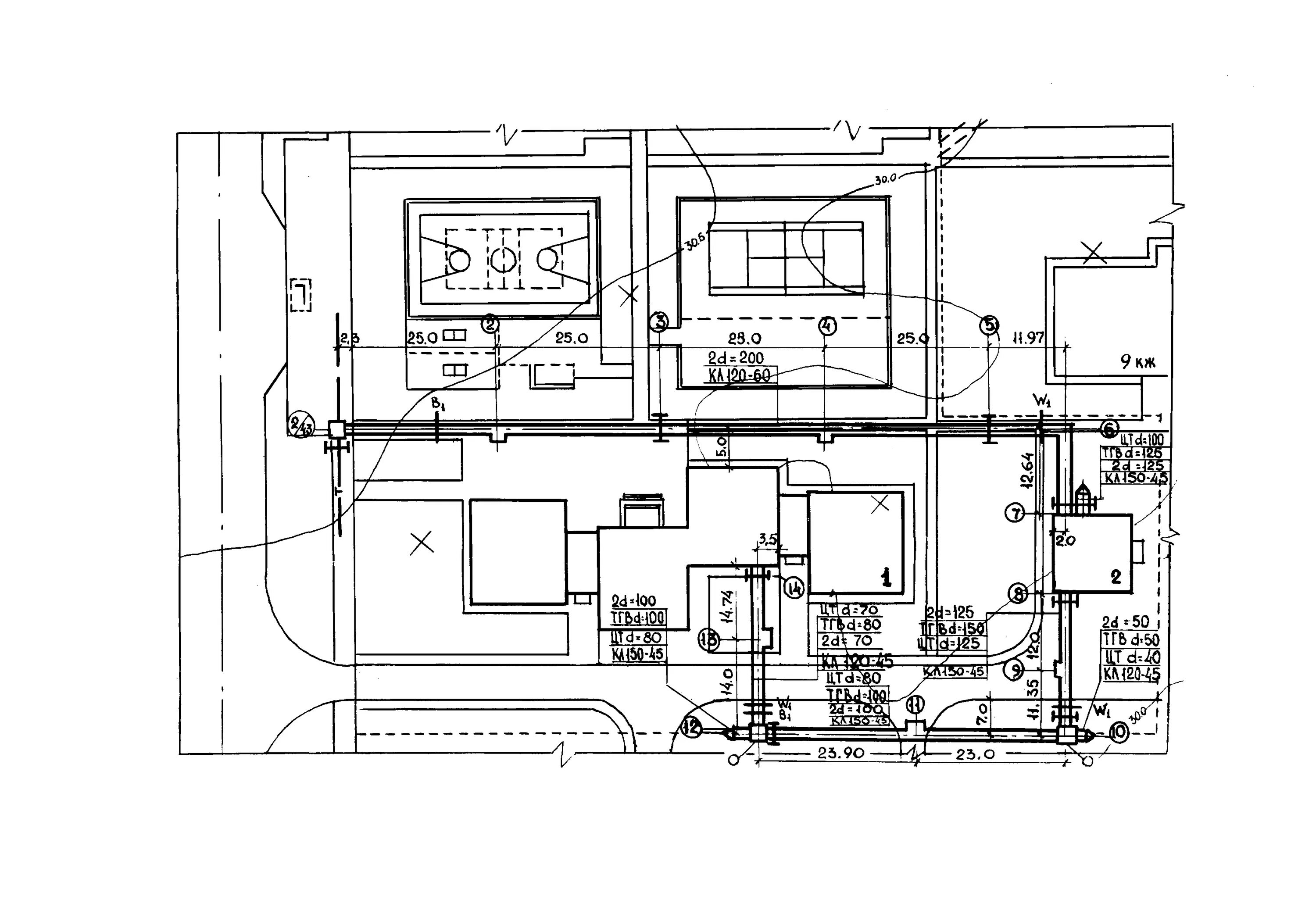
Схема инженерных коммуникаций здания. инженерные коммуникации чертежи. чертеж инженерных систем. проект чертеж инженерные сети.Инженерные сети чертеж. чертеж инженерных систем. проектирование сетей. чертеж проектирование инженерных систем.Инженерные сети чертежиИнженерные сети чертежиСхема инженерных коммуникаций здания. схема инженерных сетей здания. наружные инженерные сети схемы. схема инженерные сети жилого дома.Инженерные сети чертежиПроектирование. строительные чертежи. архитектурные чертежи. проект чертеж.Чертеж инженерных систем. инженерный чертеж жилого здания. инженерные сети чертеж. инженерные чертежи зданий.Инженерные сети чертежиИнженерные сети чертежиКабельная канализация на чертеже. схема демонтажа теплотрассы. наружные сети водоснабжения и канализации чертежи. монтажная схема трубопроводов теплосети.Генплан тепловой сети чертеж. чертеж инженерные теплосети. тепловые сети на генплане. схема инженерных сетей чертежи.Revit инженерные сети. ревит 3д моделирование трубопроводов. revit 3d проектирование газовых сетей. revit инженерные сети электрика.Проект revit водоснабжение. чертеж электрики ревит. проектирование чертежи систем вентиляции. вентиляция канализация autocad.Проектирование систем вентиляция и отопления. проектирование чертежи систем вентиляции. проектирование и монтаж инженерных систем. проектировщик вентиляции.Инженерные сети чертежиИнженерные сети чертежиЧертежи водопровода и канализации. схема канализации, водоснабжения и отопления в частном доме. инженерные сети водопровод канализация чертеж. принципиальная схема канализации пример.Генплан инженерных сетей (сводный план сетей). сводный план инженерных сетей генплан поселка. наружные сети электроснабжения генплан. генплан участка с инженерными сетями.Исполнительные чертеж слаботочные системы. принципиальная схема слаботочных сетей. исполнительная схема слаботочка. чертежи слаботочных систем.Архитектурные чертежи. чертежи проектировщика. строительные чертежи. проектирование черчение.Проект наружных сетей. проектирование наружных инженерных сетей. проектирование внешних инженерных сетей. инженерные коммуникации чертежи.Инженерные сети чертежиИнженерные сети чертежиСхема разводки воды и канализации. чертежи разводки сантехники. разводка канализации по квартире схема. схема разводки сети водоснабжения и канализации.Чертежи проектирования газопровода. раздел технологические и конструктивные решения линейного объекта. проектная документация газопровод. проект наружного газоснабжения.Инженерные сети чертежиИнженерные сети чертежиПроектирование канализации чертеж. схема прокладки наружного водопровода. наружные сети водоснабжения и канализации чертежи. план наружных сетей самотечной канализации чертежи.Инженерные сети чертежиРенга инженерные сети. renga чертеж водопровода. renga mep электрика. revit инженерные сети электрика.Схема водоснабжения частного дома чертеж. схема водоснабжения и канализации жилого помещения. схема разводки канализационных труб. проект канализации частного дома чертежи.Инженерные сети чертежиИнженерные сети чертежиСхема демонтажа теплотрассы. ппр на демонтаж теплотрассы. ппр устройство теплосети. проект организации демонтажа участка теплотрассы.Инженерные сети чертежиИнженерные сети чертежиПроектирование чертежи систем вентиляции. чертеж системы отопления в автокаде. аксонометрия вентиляции в автокаде.Проектирование канализации чертеж. обозначение канализации на плане. водопровод и канализация рабочие чертежи. как обозначить канализацию на чертеже.Инженерные сети чертежи