Удиви меня
Армирование ребристой плиты
Плита перекрытия ребристая 6х3. плита перекрытия 6х1.5 армирование. армирование ребристой плиты покрытия. ребристая плита покрытия 6х1.5 армирование.
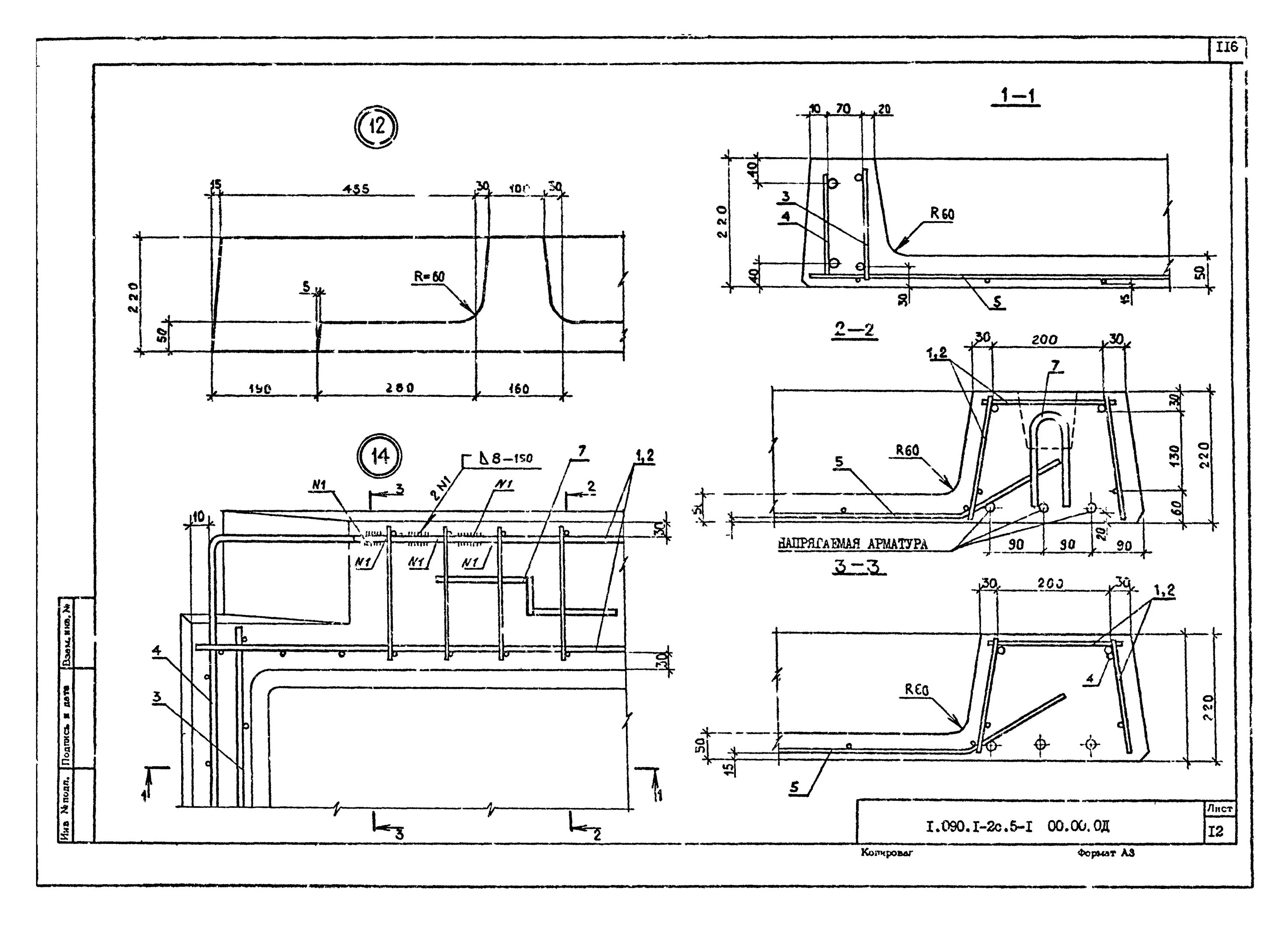
Армирование ребристой плиты перекрытия чертеж. разрез ребристой плиты покрытия. армирование плиты напрягаемая арматура. плита пкж армирование схема.
Ребристая плита покрытия 6х1.5 армирование. плита пкж армирование схема. ребристые плиты покрытия 3000*6000 мм. плита перекрытия пкж 6х1.5.
Плиты покрытия ребристые 12х3 армирование. плита перекрытия ребристая 6х3. плита покрытия ребристая 3х6 чертеж. пкж 6*1,5 чертеж.
Ребристая плита покрытия 6х1.5 армирование. плиты покрытия ребристые 12х3 армирование. схема армирования ребристой плиты покрытия. ребристые плиты перекрытия 5800х1500.
Армирование ребристой плиты покрытия. анкер на чертеже плит перекрытия. ребристая плита перекрытия чертеж. армирование сборной ребристой жб плиты.
Схема армирования ребристой плиты перекрытия. полка ребристой железобетонной плиты армируется.
Армирование ребристой плиты
Армирование ребристой плиты перекрытия чертеж. схема армирования ребристой плиты перекрытия. ребристая плита покрытия чертеж.
Плиты покрытия ребристые 12х3 армирование. схема армирования ребристой плиты покрытия. плита перекрытия 6х3 п-образной ребристой. армирование сборной ребристой плиты перекрытия.
Ребристая плита покрытия 6х1.5 армирование. плита перекрытия 6х1.5 армирование. плита пкж армирование схема. схема армирования ребристой плиты перекрытия.
Армирование ребристой плиты перекрытия.
Ребристая плита покрытия 6х1.5 армирование. ребристые плиты перекрытия 1.5х6. плиты покрытия ребристые 12х3 армирование. плита покрытия ребристая 3х6.
Плиты покрытия чертеж. легкий бетон чертеж. пирожок чертёж.
Армирование ребристой плиты покрытия. плиты покрытия ребристые 12х3 армирование. армирование плиты пкж. армирование ребристой плиты перекрытия.
Армирование жб ребристой плиты. армирование ребристой плиты покрытия. армирование ребристой плиты перекрытия. армирование ребристой плиты резервуара.
Ребристые плиты перекрытия 1.5х6 чертеж. плиты ребристые 6х1.5 армирование. плита перекрытия 6х1.5 чертеж. плита перекрытия 2п1 с ребрами жесткости.
Армирование ребристой плиты
Армирование ребристой плиты
Плиты покрытия ребристые 12х3 армирование. ребристые плиты покрытия 12х3. схема армирования ребристой плиты покрытия. ребристая плита покрытия 6х1.5 армирование.
Армирование ребристой плиты
Армирование монолитного ребристого перекрытия. схема армирования ребристой плиты. схема армирования ребристой плиты перекрытия. эквивалентное сечение ребристой плиты перекрытия.
Армирование ребристой плиты
Армирование полки ребристой плиты. полка ребристой железобетонной плиты армируется. армирование плиты разре. армирование плиты разрез.
Армирование ребристой плиты 3х6 м. плита перекрытия ребристая 6х3. плита пкж армирование схема. схема армирования ребристой плиты покрытия.
Армирование жб ребристой плиты. ребристая плита фундамента. усиление полок ребристых плит.
Армирование ребристой плиты покрытия. армирование ребристой плиты перекрытия. плита перекрытия ребристая 6х3. армирование жб ребристой плиты.
Армирование ребристой плиты перекрытия. армирование ребристой плиты покрытия. схема армирования ребристой плиты перекрытия.
Ребристая плита покрытия 6х1.5 чертеж. армирование ребристой плиты покрытия. схема армирования ребристой плиты перекрытия. армирование ребристой плиты перекрытия чертеж.
Многопустотная плита перекрытия чертеж 1500. армирование пустотной плиты 1200. плита многопустотная 1500 армирование.
Армирование ребристой плиты
Армирование плиты 1 м. ребристая плита покрытия 6х1.5. жб ребристые плиты 1.5х6. схема армирования сборной ребристой плиты.
Схема армирования ребристой плиты покрытия. схема армирования ребристой плиты перекрытия. плита покрытия ребристая 3х6 чертеж. ребристая плита покрытия 6х1.5 армирование.
Плита покрытия 12х1.5. полка ребристой железобетонной плиты армируется. плита покрытия ппс 110. ребристые плиты покрытия 3 на 12 с размерами.
Плиты покрытия ребристые 12х3 армирование. ребристая плита покрытия 6х1.5 чертеж. ребристые плиты покрытия 12х3. ребристая плита 1.5х12 спецификация.
Армирование ребристой плиты покрытия. плита жб ребристая 1200 чертеж. армирование сборной ребристой плиты перекрытия. армирование поперечного ребра ребристой плиты.
Армирование ребристой плиты
Армирование ребристой плиты
Армирование жб ребристой плиты. армирование поперечного ребра ребристой плиты. армирование ребристой плиты перекрытия. армирование ребристой плиты покрытия.
Плита перекрытия 6х1.5 чертеж. армирование ребристой плиты перекрытия. плита покрытия ребристая 3х6 чертеж.